Colloquium Kunstgeschiedenis - Semester 2
23 januari 2012

Verslag 11e hoorcollege
Het kloosterwezen, Ierse manuscripten en Karolingische kunst

 

Het kloosterwezen

De adel en de kerk bepalen het beeld van de periode na de val van het Romeinse Rijk.De kerk bezit kennis. Overal in Europa worden kloosters en kloostertjes gesticht – nog niet behorend tot een kloosterorde. De monniken zijn geletterd en via de kloosterscholen en de scriptoria wordt de kennis over het geloof verspreid en geconsolideerd. Ook de kennis van de oudheid blijft in de kloosters bewaard. Deze kennis is niet verloren gegaan en heeft ervoor gezorgd dat in Italië aan het eind van deze periode de Renaissance tot bloei kwam.

Kroning van Clovis
bron: Wikimedia
St. Augustinus Abbey
Canterbury Kent
gesticht in 598 door de eerste bisschop van Canterbury St. Augustinus.
bron: wikimedia

De adel heeft het geld en de kerk bezit kennis. Dit leidt tot een samenwerking bij het tot stand komen van gebouwen en kunstwerken in de periode tussen ca. 500 en 1500.
Clovis I is de eerste Christelijke koning van de Franken. Met hem begint de dynastie van de Merovingers.
Niet alleen op het vasteland van Europa worden kloosters gesticht ook in Groot-Brittannië zijn ruïnes van grote abdijen te vinden.

We laten de Middeleeuwen beginnen met de val van het Romeinse Rijk in 476. Het einde van de periode ligt rond 1500, als in Italië de Renaissance begint.  Heel lang zijn de Middeleeuwen gezien als een periode van chaos en teloorgang. Er werd wel gesproken over de Donkere Middeleeuwen of “Dark Ages”. De term Middeleeuwen is ook denigrerend bedoeld en is in de 15e eeuw in Florence ontstaan.  Toch heeft juist in deze periode een explosie plaats gevonden van ontwikkelingen op cultureel gebied. Grote kloosters ontstonden, kloosterorden werden gesticht en adel en geestelijk wedijverden om het laten maken van grote kerken en dure manuscripten.

De Benedictijner Orde

De eerste kloosterorde is gesticht door Benedictus van Nursia.  Waren in de 5e eeuw de kloosters onafhankelijke stichtingen – veelal door Ierse monniken (die enthousiaste bekeerlingen waren en naar het vasteland van Europe gingen om de christelijke boodschap uit te dragen.) Benedictus stichtte in de 6e eeuw de Orde der Benedictijnen.  Hij stelde leefregels op waaraan de monniken van zijn orde zich moesten houden.

Fresco van St.Benedictus
op een altaartje
in het Oratorium van de Abdij van Civate
9e - 11e eeuw
bron: flickr

De afbeelding van Benedictus is anatomisch niet correct. Een correcte afbeelding was in de 9e -11e eeuw niet belangrijk. Het ging erom dat de beschouwer snapte wat hij zag. We zien op deze fresco een frontaal afgebeelde St.Benedictus In zijn hand heeft hij een boek met daarin zijn naam. EGO SUM BENEDICTUS ABA (Ik ben Benedictus Abt) In zijn andere hand heeft hij een bisschopsstaf. Rond zijn hoofd is een aureool afgebeeld als teken van zijn heiligheid.

Enkele eeuwen later beeldt Sodoma Benedictus nogmaals af, terwijl hij zijn leefregels aan zijn monniken geeft. Ook deze afbeelding is een fresco en bevindt zich in het klooster Monte Oliveto Maggiore. Sodoma was een leerling van Leonardo Da Vinci.
Benedictus heeft geen aureool. Hij zit op zijn bisschopstroon en de kleding laat duidelijk de plooival zien, die we kennen uit de oudheid. Hij is afgebeeld als mens. Wel is hij nog groter afgebeeld dan de monniken die zijn leefregels in ontvangst nemen. Hij is de belangrijkste persoon op de fresco. Ook met de achtergrond heeft de schilder iets gedaan. Benedictus lijkt te zitten in een soort atrium, wat kenmerken heeft van perspectief. Dit is een kenmerk van renaissance kunstenaars.

De leefregels van Benedictus waren gebaseerd op ORA ET LABORA (bidt en werk) Benedictijner monniken moesten acht keer per dag bidden. Daarnaast waren zij gehoorzaamheid verschuldigd aan de abt, moesten zij leven in armoede en kuisheid. Ze moesten aan liefdadigheid doen en naastenliefde. Rond het klooster moesten zij lichamelijke arbeid verrichten en ook handenarbeid verrichten (opus manum).

Sodoma. Benedictus geeft zijn monniken zijn leefregels
Fresco klooster Monte Oliveto Maggiore 1505-1508
bron: wikimedia
Klooster van Montecassino Campinië
bron: wikimedia

Een groot Benedictijner klooster is het klooster van Monte Cassino dat in 529 door Benedictus is gesticht. Het klooster ligt op een afgelegen plaats op een bergtop, zodat de monniken niet werden gehinderd door het wereldse gebeuren.
Het huidige klooster is na de Tweede Wereldoorlog opnieuw opgebouwd. In de oorlog is het tijdens een geallieerd bombardement compleet verwoest.

Monniken in gebed (links) en aan het werk in de kloostertuin
Miniatuur uit een 12e eeuws manuscript uit de University Library, Cambridge
bron: wikimedia

Het ORA ET LABORA wordt in een miniatuur uit een manuscript van de University Library in Cambridge goed uitgebeeld. In de kloostertuin zijn monniken samen bomen aan het kappen, terwijl hun broeders binnen de muren in gebed verzonken zijn.

De kloostergemeenschap

De kloosters waren zelfvoorzienend. Het waren kleine gemeenschappen die geheel in hun eigen behoeften konden voorzien. De monniken moesten niet alleen in de moestuin werken, maar ook reparaties aan het kloostergebouw kunnen uitvoeren. Ze moesten bijen houden en waskaarsen maken. Ook werden zij geacht hun kleding zelf te kunnen onderhouden en vernieuwen.

Eadwine psalter - Waterleidingsysteem in de Kathedraal van Canterbury
Trinity Library Cambridge
bron: wikicommons

Dat monniken overal kennis van moesten hebben getuigt een manuscript uit de Trinity Library, Cambridge. Er moesten reparaties en vernieuwingen worden aangebracht aan de waterleiding van het klooster en de kathedraal van Canterbury. Een monnik heeft een plattegrond van het klooster getekend op een manier, dat we kijken naar een opgeklapte leefgemeenschap. Met verschillende kleuren heeft hij het verschillende gebruik van water en de afvoer van afvalwater de loop van het leidingen systeem aangegeven.
EXTRA INFO: Dit manuscript is onderdeel van het Eadwin Psalter, genoemd naar de schrijver. De plattegrond toont een overzicht in vogelvlucht van het waterleidingen systeem dat door het kloostercomplex, de landbouwgrond, de wijngaard en de boomgaarden, door de priorij en daarna weer afgevoerd werdt.
Het systeem vervoerde ieder uur ongeveer 10.000 liter vers water onder druk van een door een bron gevoede vijver naar het noorden van de kathedraal. Verondersteld wordt dat een gedetailleerde plan nodig was, als er reparaties nodig waren, of loden pijpen moesten worden vervangen. De accuratesse blijkt uit verschillende opgravingen.
De stroomrichting van het water is aangegeven met kleuren en toont de complexiteit van het systeem: groene pijpen voeren vers water aan, oranje pijpen waren in het klooster waar de monniken leefden, rode pijpen geven het rioleringsysteem van de gezamelijke toiletten aan, gele pijpen zijn aanwijzingen voor een zinkput en bruine pijpen dienen voor de afvoer van regenwater.
Vers water werd eerst naar de ziekenzaal gevoerd, daarna naar de wasruimte, voordat het naar de priorij, naar de keuken en naar de brouwerij en ander plaatsen liep. Afvalwater werd naar de visvijver op de binnenplaats afgevoerd, voordat het via het rioleringsysteem in de sloot bij de stad liep.
bron: History Today volume 68 issue januari 2018

Origineel manuscript van het klooster van Sankt Gallen, Zwitserland.
ca 820 Stiftsbibliotheek, Sankt Gallen.
bron: historyofinformation.com

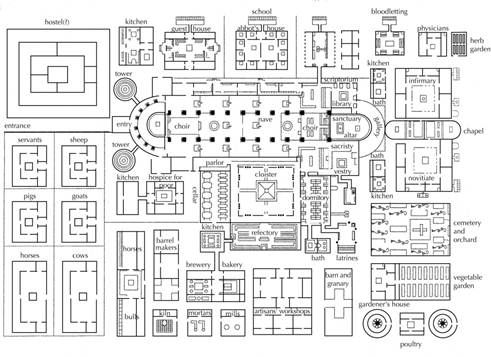
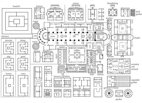
Een ander voorbeeld is de plattegrond van het benedictijner klooster van Sankt Gallen. Het origineel dateert uit ca 820 en is getekend met rode inkt.

Uit deze plattegrond blijkt duidelijk dat een kloostergemeenschap rondom het kloostergebouw en de kerk een groot aantal verschillende plekken creëerde, die ieder hun eigen functie hadden. Het middelpunt is de kerk. Naast de kerk is de slaapzaal van de monniken, zodat ze bij het eerste gebed om 03.00 uur snel in de kerk zijn. Het huis van de abt ligt ook naast de kerk, maar aan de andere kant. Hieronder een moderne versie van de plattegrond met tkest in het Engels

Moderne uitwerking van de plattegrond van het klooster van Sankt Gallen, Zwitserland
bron: legacy.earlham.edu

Naast de kerk staat ook de school, waar de kinderen van de adel leerden lezen en schrijven. De monniken namen onderricht op zich. Ieder klooster heeft ook een opvangcentrum voor pelgrims en monniken die op reis zijn. Sant Gallen had waarschijnlijk een royale herberg naast de ingang. Verder zijn op de plattegrond het hospitaal (infirmary) en het novicenhuis te vinden. Er is een nette groentetuin. Rechts naast de ingang zijn plekken voor schapen, varkens, geiten, paarden en koeien met hun verzorgers. Vanuit de keuken is een doorgang naar de brouwerij en de bakkerij. Het ontbrak deze monniken ergens aan. Ze konden volledig in hun eigen onderhoud voorzien.

Miniatuur in Manuscript met graaf Dirk II van Holland.
Hij overhandigt de abt van het benedictijner klooster van Egmond een Evangeliarium.
ca 975 Catherijne Convent
bron: wikimedia

In de loop der eeuwen worden de kloosters bijzonder machtig en rijk. Ze worden steeds groter en prachtvoller. In principe bestaat er scheiding tussen kerk en staat. De adel heeft het wereldse bestuur over het land, maar in de praktijk krijgen de abten van klooster steeds meer zeggenschap over de landerijen die zij als giften van de adel hebben ontvangen. Ook giften in geld, juwelen, rijk versierde manuscripten en kerkelijk vaatwerk doen de rijkdom van de kloosters toenemen.
Dit is er de oorzaak van dat sommige geestelijken de armoede regel in twijfel trekken. Hierdoor ontstaan nieuwe kloosterorden.

In de afbeelding hier naast zien we graaf Dirk II van Holland een Evangelarium overhandigen aan de abdy van Egmond.

Insulaire kunst

Zogenaamde ‘tapijtpagina’ uit de Book of Durrow. 7e eeuw. Trinity College Library Dublin.
bron: wikimedia

Bij de kerstening van Ierland geven de Ieren blijk van grote openheid voor het nieuwe geloof. Ze stichtten in 4e en 5e eeuw diverse kleine kloosters. Vanuit deze kloosters trekken Ierse monniken naar het vasteland van Europa om het Christendom uit te dragen. Ze stichtten niet alleen ook daar veel kloosters(Echternach, Sankt Gallen), maar namen ook manuscripten mee die ze in de kloosters achterlieten en die daar werden gekopieerd. De Ieren hadden een eigen stijl ontwikkeld in het decoreren van de pagina’s.

Ierland is nooit in aanraking geweest met de kunstvormen van de oudheid. Het land heeft nooit deel uitgemaakt van het Romeinse Rijk. De Ierse stijl was gebaseerd op Germaanse en Keltische ornamenten.
Dit wordt de Insulaire Stijl genoemd is wordt gekenmerkt door het gebruik van non-figuratieve elementen, vlecht- en dierornamenten. In de afbeelding van mensfiguren komt tot uiting dat de Insulaire stijl het afbeelden van mensen niet kent. De eerste afbeeldingen van mensen zijn star en statisch.

De materialen om een dergelijke illustratie te vervaardigen waren zeer kostbaar. Alleen de adel en de geestelijkheid bezat voldoende geld om een opdracht hiertoe te geven.

Beursklep van goud Ingelegd met juwelen en email cloisonné.
voor 655, 19 cm. Schat van Sutton Hoo, Suffolk. Britisch Museum, Londen
bron: wikimedia
Schoudergespen uit de schat van Sutton Hoo, Suffolk. voor 655. 12,7x5,4 cm. British Museum Londen
bron: wikimedia

In Sutton Hoo in Suffolk is in een graf een grote hoeveelheid voorwerpen blootgelegd die ontworpen zijn in de Insulaire Stijl. Het gaat hier om gouden voorwerpen die met granaatstenen en email cloissonné zijn ingelegd. Ook op deze voorwerpen zien we de dierornamenten en ornamentale vlechtwerk motieven.

Deze klep sloot waarschijnlijk een tas of buidel af die aan de riem op de heup werd gedragen, zodat de dure versiering goed zichtbaar was. De bezitter zal dit hebben gedragen als statussymbool en teken van zijn rijkdom. Op de onderste rij in het midden zijn twee gestyleerde dierfiguren te zien. Het lijken eendachtigen. Daarnaast zien we mensfiguren die lijken te vechten met dieren. De bovenste rij is voorzien van ornamenteel vlechtwerk. Ieder vakje is omlijnd met goud en gevuld met gesmolten glaspasta.

Hetzelfde zien we hieronder bij de schoudergespen; eveneens uit de schat van Sutton Hoo. Deze schoudergespen hebben dezelfde functie als de Romeinse fibula. Op de schouder wordt het kledingstuk door deze gespen vastgezet.
De rand van de gespen is versierd met vlechtwerk. De middenpaneeltjes hebben een ruitpatroon opgevuld met rood en blauw email cloisonné

De Insulaire Stijl is van oorsprong profaan en heeft niets met het Christendom van doen. Het is vooral een juwelenstijl voor luxe gebruiksgoederen. De manuscripten die later in deze stijl werden vervaardigd moeten ook worden gezien als luxe voorwerpen. De Ierse monniken gebruiken de hun bekende stijl, maar dan met Christelijk symboliek. Zo ontstaan The Book of Durrow, The Lindisfarne Gospels en The Book of Kells.

The Book of Durrow

Evangelie van Marcus Initium Evangeium.
650-700 Trinity College Library, Dublin<
bron: wikimedia

Dit is het begin van het Evangelie van Marcus. De begin initiaal is rijk versierd met hele kleine vlakjes. In de stokken van letter is het vlechtwerk te zien. De overige delen zijn versierd met ingekleurde krullen. De email cloisonné techniek is hier door de schrijver overgebracht op papier.

The Lindisfarne Gospels

Incipit van het Johannes Evangelie.
ca 700 British Museum Londen<
bron: www.kingsacademy.com

Met rijk versierde letters staat hier IN PRINCIPIO ERAT VERBUM (In den beginne was het woord) Het hele pagina is versierd met vlechtwerk; de letters zijn ingekleurd met groen, rood en geel, soms ook met vlechtwerk. De schrijfregels zijn uitgevuld naar de capitaal met vlechtwerk in één kleur De versiering is heel minutieus aangebracht.
Waarschijnlijk is de schrijver een monnik, die later Bisschop van Lindisfarne is geworden: Eadfrith.

De letters op de pagina beginnen groot en worden lager op de pagina kleiner. Dit wordt het diminuendo effect genoemd (dit is een typografische traditie die al sinds de Romeinse tijd bestaat. Diminuendo is een manier waarop  een grote letter of woord het oog stuurt, naar steeds kleiner wordende woorden totdat de standaard tekst grootte is bereikt.)

Lindisfarne Gospels ornament pagina
ca 700 British Museum.
bron: unverified source

Net als in The Book of Durrow kent het Lindisfarne Gospel pagina´s die volledig bedekt zijn met minutieus tekenwerk. Op deze pagina is een kruis te zien ingetekend met vlechtwerk. Deze vlechtbanden zijn zodanig getekend dat er geen begin of einde is vast te stellen, net als bij de meander die in de Griekse kunst gebruikt werd.
In wat oudere kunsthistorische boeken wordt het kruis hier gezien als overwinning op het heidendom dat zou zijn voorgesteld door het vlechtwerk.
De moderne opvatting gaat ervan uit dat de tekenaar de bekende technieken (het vlechtwerk) aanvulde met christelijk symboliek (het kruis).

Incipit van het Evangelie van Lucas
Lindisfarne Gospels folio 139 recto ca 700 British Museum Londen.
bron: unverified source
Detail van Incipit van Evangelium van Lucas.
Lindisfarne Gospels folio 139r. ca 700 British Museum. Londen
bron: wikimedia

Op deze beginpagina van het evangelie van Lucas is het diminuendo effect nog duidelijker te zien. Bij een vergroting van de capitaal is de fijne tekening van het vlechtwerk voorzien van dierenkopjes duidelijk te zien.

Miniatuur van de Evangelist Marcus.
folio 93v Lindisfarne Gospels ca 700 British Museum
bron: unverified source

De monniken die als schrijver in een klooster werkzaam zijn proberen zich figuratieve vormen eigen te maken. De hoofdletters en de kruizen die ze tekenen zijn als juwelen, maar wel tweedimensionaal. In het Lindisfarne Gospels zijn tekening opgenomen van de Evangelisten met hun symbolen.

Marcus is hier vergezeld van zijn symbool: een gevleugelde leeuw die op een trompet blaast en een boek bij zich heeft, waarin de tekst van het Evangelie staat dat Marcus aan het schrijven is. De tekenaar heeft de plooival van de tuniek van Marcus aangegeven met blauwe streepjes. Het is een poging om figuratieve elementen op te nemen. Er is overlapping bij de benen van Marcus en in het voetenbankje is een poging tot perspectief gedaan.

Miniatuur van de Evangelist Mattheus
folio 25v Lindisfarne Gospels ca 700 British Museum, Londen
bron: wikimedia

Ook hier heeft de tekenaar getracht de plooival van de mantel van Mattheus aan te geven. Op de mantel zijn het streepjes, maar onderaan zien we al een begin van plooien die voor en achterwaarts vallen. Een grappig detail is de figuur die vanachter het gordijn (let op de plooival) naar de schrijvende evangelist gluurt. Dit is een poging om diepte te suggereren en is misschien overgenomen van de Klassieke of Byzantijnse kunst. Het symbool van Mattheus is de gevleugelde mens. Ook hier weer blazend op een trompet en met een boek. Hij komt uit de hemel om de evangelist de tekst van zijn Bijbelboek in te fluisteren.

Meer informatie over de Lindisfarne gospels zijn te vinden op de website van de Khan Academy.

Evangeliarium van Echternach

Symbool van de Evangelist Marcus
folio 75v 26x19 cm. 7e – begin 8e eeuw. Evangeliarium van Echternach. Bibliothèque Nationale, Parijs.
bron: wikimedia
Evangelist Mattheus Evangeliarium van Echternach, Bibliothèque Nationale, Parijs
bron: wikimedia

Deze leeuw is niet realistisch getekend. Ook hier is eigenlijk nog steeds sprake van het toepassen van de email cloisonné techniek op papier.

Niet realistisch is ook het volgende voorbeeld, eveneens uit het Evangeliarium van Echternach. Het is de evangelist Mattheus. De mens wordt decoratief benaderd. Het lichaam wordt opgedeeld in partjes, als een soort puzzelstukje. De linker- en rechterkant van lichaam zijn volkomen symmetrisch. De decoraties in de figuur zijn de traditioneel bekende vlechtband patronen.

Overige manuscripten

Symbool van de Evangelist Johannes,
Northumbrisch Evangeliarium. Psalter Library, Corpus Christus College, Cambridge
bron: unverified source
Evangelist Johannes
ca 800 – Book of Kells, Trinity College, Dublin
bron: wikimedia

Afbeelding 23. Het symbool van Johannes is de adelaar, hier afgebeeld in groen en geel. De kenmerken zijn aanwezig, maar nog altijd is er geen realistische voorstelling. De kruizen zijn een teken van christelijke symboliek, maar stellen de windstreken voor. Het christelijk geloof wordt naar alle windstreken uitgedragen en verspreid.

In de loop der eeuwen worden ook in de manuscripten de figuren minder decoratief. Ze krijgen wat meer realistische trekken.

Afbeelding 24. Nog altijd is de figuur zo goed als symmetrisch afgebeeld, maar de tekenaar/schrijver heeft wel moeite gedaan om de plooien van de mantel realistischer af te beelden. De verhoudingen zijn nog niet correct.(Let op de kleine voetjes)

Evangelist Johannes.
Iers Evangeliarium 8e eeuw Sankt Gallen, Zwitserland
bron: unverified source
Gevangenneming van Christus,
>ca 800 Book of Kells, Trinity College, Dublin, Ierland
bron: wikimedia

Afbeelding 25.In dit Evangeliarium is de afbeelding weinig realistisch. De tekening is tweedimensionaal , ook probeert de tekenaar door overlapping in de plooien enige vorm van diepte te suggereren. Johannes is statisch met twee “vreemde”voetjes.

Afbeelding 26. Nog steeds de symmetrie in de figuur van Christus en de starende blik. Let op de armen. Het lijkt alsof Christus in een orante houding is afgebeeld, naast hem staan twee “soldaten” die hem bij de armen vasthouden. Christus lijkt te staan voor een soort poort, die de rondboogvorm heeft. Er is een besef van het vooraan en achteraan staan. Christus is als belangrijkste persoon het grootst afgebeeld, maar het kan ook zijn dat de tekenaar een vorm van optische vertekening heeft willen aangeven, door de “soldaten” kleiner en naar achteren te plaatsen.

Chi-Rho monogrammen.

Chi-Rho monogram uit het Evangeliarium van Sankt Gallen,
ca 8e eeuw.
bron: unverified source
Chi-Rho monogram uit de Book of Kells,
Trinity College, Dublin
bron: wikimedia
Chi-Rho monogram uit de Codex Aureus
ca 750 39x31 cm Koninklijk Bibliotheek, Stockholm
bron: unverified source
Detail van het Chi-Rho monogram uit de Codex Aureus (zie fig 29)
bron: unverified source

De figuren 27 tot en met 30 zijn voorbeelden van het Chi-Rho monogram de X en P waarmee Christus wordt aangeduid. De uitwerking is van eenvoudig met kleuren, zeer gedetailleerd tot met goud ingetekende kapitalen.
In the Book of Kells verwerkt de tekenaar ook allerlei dier- en mensfiguren in de decoratie van de pagina.
De randen van het monogram in de Codex Aureus zijn ingelegd met bladgoud.

Karolingische Kunst

Munt met de afbeelding van Karel de Grote.
na 804 doorsnede 20 mm Cabinet de Medaillons, Bibliothèque Nationale, Parijs.
bron: wikimedia
Onder Karel de Grote ontstaat er een nieuwe stijl: de Karolingische Stijl. Dat wil niet zeggen dat de Insulaire Stijl ineens verdwenen is, maar deze wordt langzamerhand steeds meer naar de achtergrond verdrongen.

In 800 wordt Karel de Grote in Rome tot keizer gekroond. Het idee van een groot Keizerrijk herleeft. In deze munt wordt Karel de Grote afgebeeld als Romeins Imperator. De randtekst luidt ook KAROLUS IMP(ERATOR) AUG(USTUS). Karel neemt hiermee naar zijn onderdanen de titel aan van Augustus, naar de eerste keizer van Rome. Hij is ook afgebeeld met de laurierkroon en zijn overkleed wordt op de schouder bijeengehouden door een fibula. Hij ziet er op deze munt uit als een Romeinse Senator op weg naar het Senaatsgebouw. De munten dienden als een vorm van public relations. Iedereen kreeg ze in handen en kon kennis nemen van de persoon Karel de Grote.

Karel wilde de grandeur en de luister van het oude Romeinse Rijk terugbrengen. We spreken wel van de Karolingische renovatio. Het imago van de leider van het volk moest een beetje worden opgepoetst.

Ontstaan van het Frankische Rijk tussen 750 en 814
bron: wikimedia

Pepijn de Korte kreeg in 747 toestemming van de paus om de koning van de Merovingers af te zetten en zelf de kroon van het Frankische Rijk op zich te nemen. Tot die tijd waren de Karolingers de hofmeiers van de Merovingische dynastie. Pepijn regeerde over de gebieden wat nu Frankrijk, België en Nederland is, plus een deel van Duitsland. Zijn zoon Karel de Grote veroverde Noord-Duitsland, grote delen van Italië en delen van de Pyreneeën. Langs de rand van zijn rijk lagen landen die schatplichtig aan zijn rijk waren. Het roze gedeelte in bovenstaande kaart is de Kerkelijke Staat met Rome als hoofdstad. Dit gedeelte werd bestuurd door de paus. De paus was weliswaar de geestelijk heerser, maar door giften was het gebied waarover hij heerste behoorlijk uitgebreid.

Karel de Grote ijverde voor het tot stand komen van één rijk onder één heerser, een herleving van het keizerrijk. Hij voerde een eenvormig belastingstelsel in. De kloosters moesten zich gaan richten op scholing, met name van het Latijn, dat de officiële taal werd voor alle documenten van het hof. Karel maakte veel reizen in zijn rijk en kwam vaak in Italië. Hij verzamelde zo veel kennis over de oudheid. Hij omringde zich met wetenschappers en geleerden en bevorderde de kunst en de cultuur.

Ruiterstandbeeld van Karel de Grote (of Karel de Kale)
ca 850, verguld brons, paard 21 cm, keizer 19,5 cm. Musée du Louvre, Parijs
bron: unverified source
Ruiterstandbeeld van Karel de Grote (of Karel de Kale)
ca 850, verguld brons, paard 21 cm, keizer 19,5 cm. Musée du Louvre, Parijs
bron: unverified source

Waarschijnlijk is dit een beeldje van Karel de Grote. Hij zit hier als heerser op zijn paard, als een soort statussymbool. Hij laat zich ook uitbeelden als heerser. In zijn rechterhand heeft hij mogelijk een zwaard of een scepter vastgehouden. In zijn linkerhand zien we de rijksappel. Dit is de voorstelling van de aarde met het hemelgewelf. Het kruis bovenop weerspiegelt de christelijke waarde waarin hij regeert.
Dit beeldje doet denken aan het beeld van Marcus Aurelius in Rome. Het verschil is, dat het gebaar dat Marcus Aurelius maakt niet dat van een heerser is, maar het adlucutio-gebaar: hij vraagt aandacht, want hij wil gaan spreken.

Karel de Grote
Albrecht Dürer
olieverf op paneel ca 1512 190x89 cm, Germanisches National Museen, Neurenberg.
bron: flickr.com

Latere schilders hebben Karel de Grote ook afgebeeld. Een bekend voorbeeld is het schilderij van Albrecht Dürer, dat in Neurenberg te zien is.

Op dit schilderij van de Duitse renaissance schilder Albrecht Dürer is Karel de Grote ook afgebeeld met de regalia. De wapenschilden links en recht symboliseren zijn afkomst van de Frankische koningen (rechts de fleur de lis) en links staat de adelaar van het Heilige Römische Reich der Deutsche Nation.

Architectuur in het Karolingische Rijk

Reconstructie van het paltz kapel complex van Odo von Metz in Aken.
bron: wikimedia

Karel de Grote reisde veel. Toen hij koning werd, gaf hij Odo von Metz opdracht om in Aken een paltz paleis te bouwen met een kapel.

Van dit complex is alleen de octogonale kerk (rechts in de tekening) nog aanwezig. Aan de westzijde van de kerk is een groot atrium en het koor in het oosten in een kleine uitbouwtje.

De huidige Dom van Aken ziet er anders uit. In de loop van de eeuwen zijn er allerlei veranderingen aangebracht. Zo is het oorspronkelijke koor vervangen door een hoog gotisch koor. De koepel dateert uit de 17e eeuw 1656 en de puntige westtoren is neogotisch en gebouwd in 1884

Dom van Aken. gefotografeerd in 2009.
bron: eigen opname
Bronzen beeld van de Dom van Aken gefotograafd in 2009
bron: eigen opname

De keuze voor de centraalbouw komt door de reizen van Karel in Italië. Hij kiest de San Vitale als voorbeeld met een koepel met mozaiek. Karel heeft zelf met toestemming van de paus bouwelementen o.a. de kolommen uit Ravenna meegenomen.

Als Karel tot Keizer is gekroond wordt de kerk gewijd.

Grondplan van de paltz kapel met een klein koor rechts en het westwerk rechts.
bron:unverified source
Opengewerkt 3D model van de Paltzkapel in de Dom van Aken.
bron:unverified source
Grondplan van de huidige paltzkapel in de Dom van Aken. Rechts het verlengde gotische koor.
bron: wikimedia
Interieur van de Paltzkapel. Let op de zware massieve pilaren die de druk van de koepel dragen..
bron: unverified source
Interieur van de San Vitale, Ravenna.
bron: unverified source
Kolommen in de gallery van de Dom van Aken, gefotografeerd in 2009,
bron: eigen opname

Vergeleken met de San Vitale oogt de Paltzkapel veel massiever en somber, terwijl de San Vitale een ruimere lichtere indruk maakt.
De kolommen op afbeelding 44 zijn vermoedelijk door Karel de Grote als spolia (hergebruik van materialen uit andere bouwwerken) naar Aken vervoerd en opnieuw gebruikt bij de bouw van de Paltz kapel.

De mozaieken

Gewelf mozaieken in de Dom van Aken
bron: unverified source

Net als in de San Vitale liet Karel de gewelven van de Paltz kapel decoreren met mozaieken. De donkerblauwe kleur stelt het hemelgewelf voor waarin in goud allerlei stervormen en guirlandes zijn verwerkt. Ook vlechtbandpatronen uit de insulaire kunst werden gebruikt. Op sommige gewelven werden figuratieve voorstellingen aangebracht, zoals een schip, wat mogelijk een voorstelling is van het Christendom.

Gewelf mozaieken voorstellend het hemelgewelf met sterrenhemel.
Dom van Aken
bron: wikimedia
Gewelf mozaiek met figuratieve voorstelling van een schip.
Dom van Aken<
bron: wikimedia

Het westwerk

360 graden opname van de begane grond van de Dom van Aken
bron: unverified source

De begane grond van de kapel werd gebruikt door het volk. Karel volgde de dienst vanaf zijn troon op de gallerij aan de westkant van de kapel. Dit was zijn privévertrek en gewijd aan de aartsengel St. Michaël.

Troon van Karel de Grote in zijn privévertrek op de gallerij van de Dom van Aken
bron: wikimedia
Westwerk van de Dom van Aken, gefotografeerd in 2009,
bron: eigen opname

Aan de westkant van de Dom van Aken was de ingang. Oorspronkelijk werd voor de bouw van kerken de basilicavorm gebruikt. Opeenvolgende bouwmeester voegden eigen ideeën en ontwerpen aan het grondplan toe. Zo introduceerde Odo von Metz als eerste een bouwelement aan de westkant van de Dom van Aken; het zogenaamde Westwerk. Hierin werd een voorhal opgenomen die diende als ontvangsthal en op de bovenverdiepingen waren de privévertrekken van de heerser en zijn gevolg. Vanaf de bouw van de Dom van Aken werd het Westwerk gewijd aan de aartsengel Michaël.

Westwerk van de kloosterkerk van de Benedictijner Abdij van Corvey, Hörtex

873-885
bron: wikimedia
Grondplan van de kloosterkerk van Corvey, Hörtex,
Duitsland gebouwd tussen 873-885

aangepaste tekening met teksten
bron: wikimedia

In de loop van de eeuwen wordt het Westwerk een ingangspartij met een eigen gebouw met torens Kerken waren – voor zover mogelijk – altijd in oost/west richting gebouwd. Aan de oostkant was het koor met het altaar en het hoogaltaar, aan de westkant werd de ingang met een voorhal met drie ingangen gebouwd, die herinneren aan de Romeinse triomfbogen De middelste ingang was het grootste. De ingangspoorten stonden in het uitbouw: het midden risaliet.
Er was geen verplichting om de oost/west richting aan te houden, de bouwmeester mocht afwijken, als bijvoorbeeld omringende bebouwing of slechte ondergrond de situering van de kerk niet in oost-westelijk richting mogelijk maakten.

Op deze afbeelding is duidelijk te zien dat het Westwerk een eigen gebouw is. De middelste toegang staat in het midden-risaliet. Twee toren flankeren de zijkanten.

Het Westwerk is voorzien een kruispatroon om aan te geven dat het gaat om kruisgewelven. De kloosterkerk kent drie beuken. De middenbeuk mag ook worden aangeduid met middenschip. Daarnaast zijn aan weerskanten twee zijbeuken.
Het transcept scheidt de middenbeuk van het koor en de kooromgang. Het gedeelte tussen het koor en het middenschip wordt de viering genoemd. Vaak werd de viering voorzien van een toren: de vieringstoren. Door het opnemen van het transcept in de kerkbouw wordt in het grondplan het kruis zichtbaar.
Achter het koor – vaak met een trap naar beneden – ligt de crypte, waar de relieken van de heilige worden bewaard.

Tribune in het Westwerk van Corvey.
Höxter
bron: Stabrecht
Vestibule van Corvey met kruisgewelven
Höxter
bron: Stabrecht

De Karolingische tribune in het westwerk van Corvey kent rondbogen en tongewelven. Daar waar tongewelven samenkomen ontstaat een zogenaamd kruisgewelf. Vanaf het hoogste punt in het kruisgewelf wordt de druk van het gebouw over de ribben afgevoerd naar de pilaren.

Kapiteel in de vestibule van de Corvey Abdij. Höxter
bron: wikimedia

In de Karolingische Stijl is het beeldhouwwerk zeer eenvoudig. De kapitelen geven wel nog de indruk van acanthusbladeren en voluten, maar zeer vereenvoudigd en niet gedetailleerd. Beeldhouwwerk is weinig in trek, omdat het maken van afgodsbeelden niet gewenst is. Wel zien we in de kapitelen nog vlechtbanden.

Grondplan van St.Riquier.
Abbéville, Frankrijk.
bron: wikimedia
Longitudinale tekening en grondplan van de St. Michaëlkirche in Hildesheim.
1001-1031
bron: unverified source

Het ontwerp van het Westwerk van een kerk wordt in latere jaren steeds meer een kopie van de opbouw het transcept. Voorbeelden hiervan zijn de kerk van St.Riquier bij Abbéville en de St.Michaëlskerk in Hildesheim.

Het westwerk is een gespiegeld kopie van het transcept. Op deze longitudinale tekening van de kerk is duidelijk te zien dat ook de torens van het transcept zijn gekopieerd naar het Westwerk. Bekijken we het grondplan dan is het transcept als het ware over het Westwerk te leggen en zijn beide delen van de kerk identiek.

De kerk van Hildesheim is ontstaan na de Karolingische tijd en behoort al tot de Ottoonse Stijl.